127-Unit Mixed-Use Building Proposed for SE Division & Chavez Corner

Portland, OR
Project Overview
Address
2440 SE Cesar E. Chavez Blvd.
Units
127 Residential
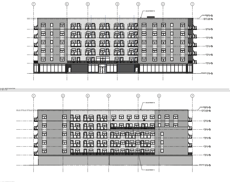
Stories
6
Commercial
Ground-floor space
Parking
26 vehicle, 64 bike spaces
Architect
West Architects, Inc.

A new six-story, 127-unit mixed-use apartment building is slated for one of Southeast Portland’s busiest intersections: the corner of SE Division Street and Cesar E. Chavez Boulevard. The development, located in the heart of the bustling Richmond neighborhood, aims to add significant housing density and new ground-floor commercial space to the prominent commercial corridor.

The project, developed by SDC-CC1, LLC and designed by Beaverton-based West Architects, is moving through the city’s planning process under a “Mandatory Adjustment Review.” This special process is guided by Oregon Senate Bill 1537, a state law enacted to accelerate housing production. The law requires the city to approve certain developer-requested adjustments to zoning code for projects that include housing. In this case, the applicant is requesting to increase the maximum building height from 55 to 66 feet, modify the building's height transition to neighboring properties, and reduce the minimum required long-term bike parking spaces from 127 to 64.

Bike Parking Reduction: A notable adjustment is the proposal to nearly halve the required long-term bicycle parking, reducing the mandate from one space per unit to approximately one space for every two units.

While the City of Portland has opened a public comment period, with comments due by November 26, 2025, the SB 1537 framework significantly limits the city's ability to deny the requests. According to the public notice, "under state law, the City cannot deny the Adjustment requests unless the project is found ineligible under SB 1537." This streamlines the path to approval, shifting the decision-making process from discretionary to administrative. Neighborhood groups, including the Richmond Neighborhood Association and the Division-Clinton Business Association, have been formally notified of the proposal.

Current view of the intersection at SE Division and Chavez
The current site at the corner of SE Division & Cesar E. Chavez Blvd, which is currently occupied by low-rise commercial structures that will be demolished to make way for the new development.

The development promises to transform a key corner of the Division Street district, replacing the existing structures with a high-density residential and commercial hub, contributing to the ongoing evolution of one of the city's most popular main streets.